Una dimora che sembra fluttuare tra i rami, dove volumi sorprendenti si aprono in percorsi inattesi e superfici materiche a contrasto accolgono i suoi abitanti in un abbraccio di calma, meraviglia e incanto.
Nelle foreste d’alta quota la nebbia avvolge ogni cosa, dissolvendo i confini e donando a ogni scoperta un’aura di mistero. Tra i tronchi di pini, che si stagliano come sentinelle silenziose, emerge una presenza inattesa: una casa all’apparenza sospesa, un rifugio che sembra prendere vita tra rami e foglie, come quelle abitazioni sugli alberi che popolano i sogni dell’infanzia, ma raccontata con il rigore e la sensibilità dell’architettura contemporanea.
Siamo a Mineral del Monte, nella regione di Hidalgo, Messico, una città antica di minatori adagiata a oltre 2700 metri di quota, dove la natura impone i suoi ritmi e il fianco della montagna diventa sfida e opportunità progettuale. Il terreno scelto da Lore e Carlos, i proprietari, è un pendio ripido, incorniciato da fitti boschi, un luogo che non concede spazi facili, ma suggerisce una costruzione che si immerga e si fonda con l’ambiente circostante.
Le grandi aperture di Casa Oruç incorniciano la foresta, portando il paesaggio dentro la vita quotidiana.

Lo studio Saavedra Arquitectos si è confrontato con questa prova, progettando una dimora di 250 mq sviluppata su due livelli sfalsati che seguono l’andamento naturale del pendio senza forzarlo. L’accesso avviene dal punto più alto del terreno, e una scala accompagna il percorso verso il cuore dell’abitazione. La residenza ospita un grande living con cucina a vista e una terrazza sospesa con vista panoramica, due camere ciascuna con bagno privato e, nella parte più intima, un altro salotto con terza stanza da letto e bagno en suite, oltre a un garage esterno per due automobili.
Inserita nel ripido pendio del bosco, l’abitazione si sviluppa su livelli sfalsati collegati da una scala interna che accompagna il percorso tra gli spazi.

Il percorso è un racconto materico che accompagna chi entra: il cemento armato si alterna in tonalità e texture, tra superfici grezze e blocchi scanalati, mentre il legno avvolge pavimenti e pareti, portando calore e continuità. Percorrendo la prima rampa, una cornice esterna invita a percepire la soglia come uno spazio fluido, dove dentro e fuori si confondono. Il corridoio si apre sotto una soletta a doppia falda rovesciata, sospesa tra i rami, da cui una finestra incornicia il living come un quadro.
Superfici materiche e dettagli ricercati definiscono il linguaggio degli interni, dove ogni finitura partecipa a un dialogo silenzioso con il paesaggio.

L’interno si svela in un grande open space che si trasforma senza soluzione di continuità da zona pranzo a cucina e salotto, estendendosi verso una terrazza affacciata a sud che moltiplica la percezione dello spazio e dell’orizzonte. Il piano si protende con un ampio sbalzo di oltre sette metri, offrendo a questa zona, e alle due camere da letto con bagni privati, una luce e una vista rarefatte, come se volassero tra il cielo e la foresta. La suite padronale è un rifugio a parte, con un ulteriore soggiorno e bagno en suite, completa di balcone riservato.
Il living open space è caratterizzato da tonalità scure e un’atmosfera avvolgente, dove luce e volumi definiscono uno spazio intimo e raccolto.

La zona cucina e dining è immersa nella luce, con arredi e volumi pensati per accogliere convivialità e comfort quotidiano.

I materiali scelti – cemento, acciaio e legno – dialogano con la natura circostante: la solidità e il rigore delle strutture incontrano la morbidezza del legno, creando un equilibrio tra la durezza della pietra e del metallo con la leggerezza dell’aria. Anche gli arredi seguono questa dinamica: pochi e scelti, cromie scure o polverose e texture impalpabili alternate, tocchi vintage e dettagli su misura. I tetti, inclinati e rovesciati, raccolgono l’acqua piovana per convogliarla in una cisterna, trasformando la casa in un organismo vivo, parte integrante dell’ecosistema.
Il legno delle superfici dialoga con il cemento dei soffitti e l’acciaio degli infissi, un gioco materico che percorre tutta la casa, comprese le camere da letto.

Lore e Carlos hanno immaginato questo luogo come un ritiro nel verde capace di accogliere ospiti e amici, un insieme di spazi interconnessi e aperti, dove il piacere della condivisione si fonde con la quiete del bosco. Quella che nasce come un rifugio per due, si arricchisce della presenza di Oruç, il cane di famiglia (che dona il nome alla proprietà) trasformandosi in una dimora per tre e per tutta la famiglia allargata.
La camera, rivestita in legno, si apre direttamente sulla foresta, trasformando la vista sul bosco in parte integrante dello spazio notte

Casa Oruç racconta una storia di coraggio e armonia, di un progetto che non si impone ma si lascia scoprire, un viaggio tra materiali, luci e ombre, che sembra fluttuare tra la terra e i rami degli alberi. Una casa che esiste nella misura in cui la natura la lascia vivere, un sogno costruito tra i pini, dove ogni passo è un incontro con il silenzio e la bellezza selvaggia del paesaggio.
Project by Saavedra Arquitectos – saavedraarquitectos.com
Photo © Onnis Luque
La casa si adagia sui ripidi pendii delle foreste di Mineral del Monte, integrandosi con il bosco circostante e seguendo le curve naturali del terreno.

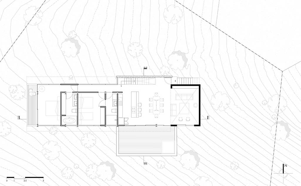
Planimetria del piano principale di Casa Oruç © Saavedra Arquitectos

Planimetria del livello più intimo, con salotto e camera con bagno © Saavedra Arquitectos

Planimetria del piano strada col garage e le scale per raggiungere l’ingresso dell’abitazione © Saavedra Arquitectos

In copertina, Casa Oruç: una dimora tra gli alberi, un rifugio di raffinata progettazione.























