Interni completamente ridisegnati e ambienti versatili restituiscono equilibrio e armonia a una dimora storica londinese, creando scenari pensati per adattarsi alle esigenze quotidiane di una giovane famiglia.
Ristrutturare un’abitazione vittoriana significa spesso confrontarsi con una storia fatta di stratificazioni e compromessi architettonici. Nel nord di Londra, a Crouch End, un intervento accurato ha saputo riorganizzare la distribuzione interna di una casa segnata da decenni di aggiunte e divisioni strutturali discutibili, restituendo luminosità, respiro e fluidità a una dimora ottocentesca concepita per la buona borghesia cittadina.
Nel corso del tempo, le modifiche susseguitesi senza una visione complessiva avevano alterato profondamente l’organizzazione originaria degli spazi, generando una sequenza di ambienti di dimensioni ridotte, in cui la luce naturale risultava fortemente penalizzata e il rapporto con il giardino quasi del tutto snaturato. Sviluppata su quattro livelli, per una superficie complessiva che oggi si attesta sui 281 mq, questa townhouse si presentava come un labirinto disordinato, distante dalle esigenze dell’abitare contemporaneo.
Russet House dal fronte giardino, dove gli ambienti rinnovati si aprono sul verde, fondendo eleganza e armonia in un dialogo tra interno e natura.

I nuovi proprietari, una giovane coppia con figli piccoli, ne hanno visto il grande potenziale, immaginandola non solo come la casa perfetta per la loro famiglia, ma come uno spazio capace di adattarsi alle diverse esigenze che si presenteranno nel corso degli anni a venire. Lo studio Mulroy Architects ha raccolto questa ispirazione, lavorando su un’abitazione capace di trasformarsi insieme a chi la abita e che non richieda ulteriori modifiche future.
Il progetto ha preso avvio da una profonda revisione della planimetria, fortemente condizionata da oltre un secolo e mezzo di aggiunte quasi casuali. Il gesto più significativo è stato la creazione di un nuovo atrio centrale, ottenuto attraverso la completa rimozione del pavimento dell’ex sala da pranzo. Questo intervento ha messo in relazione diretta il piano terra con un nuovo livello interrato, scavato ex novo in sostituzione della piccola cantina preesistente, introducendo una dimensione verticale che ha trasformato radicalmente la percezione degli interni.
Il vuoto centrale è diventato così il fulcro dell’intero edificio, amplificando la luminosità interna e ridefinendo i rapporti tra i diversi livelli. A caratterizzarlo è la nuova scala in acciaio color ruggine che accompagna la discesa verso il piano sotto strada: un elemento dal forte valore architettonico, concepito come presenza scultorea più che come semplice collegamento. La sua tonalità intensa dialoga con le superfici neutre, instaurando un equilibrio raffinato tra linguaggio contemporaneo e memoria storica. A questo fil rouge contribuisce anche il camino originale della sala da pranzo, conservato come elemento decorativo a parete e reinterpretato come supporto concettuale per un’importante opera d’arte.
La scala in acciaio color ruggine dialoga con il camino originale dell’ex sala da pranzo, diventando fulcro scultoreo che unisce memoria storica e linguaggio contemporaneo.

La luce naturale ha rappresentato la priorità progettuale dell’intera ristrutturazione. Gli ampliamenti precedenti avevano quasi nascosto la parte posteriore dell’edificio, rendendo gli ambienti interni bui e poco accoglienti. Per rispondere a questa condizione, la nuova estensione è stata dotata di lucernari orientati a sud, studiati per garantire un apporto luminoso costante e profondo, capace di raggiungere anche il livello interrato, oggi arioso e confortevole.
Il nuovo volume scavato al piano inferiore ospita ambienti versatili e luminosi, mentre la grande vetrata dalla cucina mette in relazione la zona giorno con la scenografica scala in acciaio.

Il nuovo volume sotterraneo è stato concepito come parte integrante della casa, superando l’idea di spazio secondario. Qui trovano posto una camera da letto con bagno privato, una palestra e una sala cinema, tutti caratterizzati da ampie superfici vetrate affacciate sul vano scala. Grazie alla presenza di un accesso indipendente e di servizi autonomi, questo livello potrà in futuro essere trasformato in un’unità abitativa separata, destinata a ospiti, figli adulti o genitori anziani, garantendo una flessibilità d’uso pensata per durare nel tempo.
La cucina total white si apre verso il giardino, illuminando l’interno con eleganza e armonizzandosi con dettagli in legno e tocchi di design contemporaneo.

L’ampio nuovo open space accoglie living e cucina in un unico ambiente, dove luce naturale e materiali caldi creano continuità e atmosfera raffinata.

Se il fronte su strada e il salotto all’ingresso sono stati preservati nel rispetto dell’impianto originale, la porzione rivolta verso il giardino è stata completamente ripensata. Le piccole stanze un tempo destinate a funzioni di servizio sono state eliminate per lasciare spazio a un unico grande ambiente open space che accoglie living e cucina, oggi cuore della vita famigliare.
I nuovi infissi collegano gli interni al giardino, incorniciando la vista esterna e valorizzando il rapporto tra architettura e verde.

L’interior è definito da una palette chiara, improntata al total white, scaldata dalla presenza del legno e da arredi di design che riprendono le sfumature della scala centrale. I nuovi infissi contemporanei stabiliscono una relazione diretta con il verde, creando un’atmosfera raccolta e quasi bucolica, nonostante il contesto urbano. Una grande vetrata interna, chiusa, mette in relazione questo spazio con la scala, introducendo un elemento scenografico che richiama l’estetica tipica delle gallerie d’arte moderna.
Una delle camere dei figli è caratterizzata dal calore del soffitto color terracotta, armonizzando tonalità naturali e dettagli storici in un ambiente intimo e raffinato.

La scala storica è stata mantenuta nella sua configurazione originaria e dipinta di bianco. Sotto la rampa trovano posto un guardaroba e un bagno di cortesia. La struttura lignea, risalente all’Ottocento, conduce al primo piano, dove si sviluppa la zona notte dei figli con due camere da letto e un bagno dedicato, impreziosite dalle cornici originali sui soffitti. Sul pianerottolo intermedio si apre, invece, un ulteriore ambiente oggi destinato a studio o camera per gli ospiti, con accesso a un terrazzo e servito da un ulteriore bagno.
Lo studio, in una bella nuance di verde, si apre sul terrazzo, creando un ambiente armonioso e raccolto, perfetto per concentrazione e relax.

Il secondo piano riprende una distribuzione analoga, ma qui le due camere originarie sono state unite per creare una master suite ampia e riservata, composta da camera da letto, cabina armadio e un bagno di dimensioni generose. Nel piano ammezzato, in corrispondenza allo studio sottostante, è stata organizzata una lavanderia finestrata, discreta e funzionale.
La nuova master suite si distingue per le armadiature in legno con paglia di Vienna, che conferiscono calore e texture raffinata a uno spazio elegante e armonioso.

Il bagno padronale in bianco e verde salvia combina materiali naturali e finiture sofisticate, creando un ambiente luminoso e raffinato, pensato per comfort e quiete.

Le finiture contribuiscono in modo decisivo a definire l’atmosfera complessiva. La palette cromatica è ispirata ai toni della terra, con sfumature che spaziano dal rosso agli aranci profondi, passando per marroni e rosa, bilanciati da grigi e bianchi più freddi. Superfici in mattoni a vista imbiancati e intonaci lisci introducono una sottile varietà materica, mentre il parquet dalle tonalità dorate accompagna tutti i livelli, disegnando una sofisticata continuità estetica.
La pergola contemporanea struttura il giardino, creando un’intimità elegante tra spazi verdi e architettura, con un gioco di luci e ombre che valorizza l’ambiente esterno.

All’esterno, il giardino è stato ridisegnato attraverso nuove piantumazioni e l’inserimento di una pergola dal carattere contemporaneo, che delinea uno spazio ombreggiato dedicato al relax. La presenza del verde, pensata come estensione naturale degli interni, rafforza una relazione fluida tra indoor e outdoor, completando un progetto che interpreta la ristrutturazione come un atto di equilibrio, misura e trasformazione consapevole.
Project by Mulroy Architects – mulroyarchitects.com
Photo © Dan Glasser
Il giardino si anima di suggestioni grazie a giochi di luce e ombra, valorizzando il verde e i volumi architettonici in un’atmosfera raccolta e armoniosa.

Planimetria del piano interrato, prima e dopo © Mulroy Architects

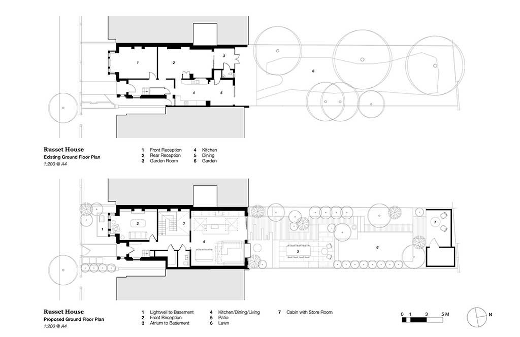
Planimetria del piano terra e giardino, prima e dopo © Mulroy Architects

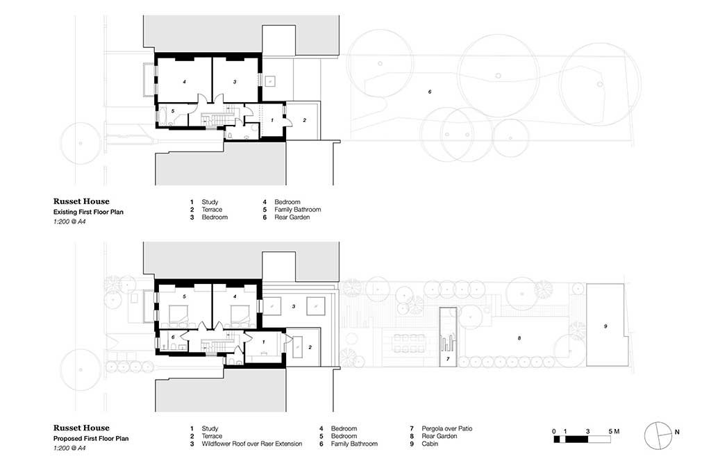
Planimetria del primo piano, prima e dopo © Mulroy Architects

Planimetria del secondo piano, prima e dopo © Mulroy Architects

In copertina, la vista dal giardino descrive perfettamente Russet House come un progetto di luce e respiro, dove gli spazi ridisegnati accolgono e trasformano la vita quotidiana.























