Materia e luminosità si inseguono in spazi misurati e profondi, dando forma a un abitare essenziale, sofisticato e fortemente espressivo.
Un cambio di passo netto, quasi una metamorfosi architettonica. L’intervento prende forma dal recupero di un antico fienile di 280 mq, parte integrante del complesso storico dell’ex Distilleria di Liquori Cocchi a Reggio Emilia, oggi trasformato in residenza privata. Un’operazione che non si limita a mutarne la funzione ma ne riscrive l’identità, restituendo agli spazi interni un carattere inedito, aperto e teatrale, dove il dialogo tra memoria e contemporaneità diventa il vero linguaggio progettuale.
L’esterno dell’antico fienile della ex Distilleria Cocchi a Reggio Emilia, sobrio e regolare: dalla facciata nulla lascia intuire la ristrutturazione che ha ridefinito gli spazi interni.

Alla guida della ristrutturazione, lo studio SBAR – Salonia Baldin Architettura ha scelto di partire da ciò che già esisteva, leggendo con attenzione la struttura originaria dell’edificio. Il ritmo regolare dei pilastri perimetrali, la sequenza delle alte colonne centrali, la spazialità generosa articolata su due quote e, soprattutto, l’imponente sistema di copertura in rovere con capriate e travi a vista sono diventati gli elementi fondativi dell’intervento, da valorizzare senza sovrascritture.
Colonne portanti e pareti in mattoni dialogano con la muratura di pavimenti e scale, definendo il carattere originario dell’edificio.

Il nodo più delicato da sciogliere riguardava la luce. Le aperture originarie, poche e contenute, garantivano un apporto luminoso insufficiente e una ventilazione limitata. A questo si aggiungeva la necessità di rispettare l’aspetto delle facciate su strada, tutelate per il loro valore storico.
La risposta progettuale è arrivata dall’alto: il tetto diventa il luogo dell’innovazione, lo spazio in cui inserire nuovi dispositivi capaci di trasformare l’esperienza abitativa senza alterare l’involucro esistente.
Interventi calibrati valorizzano la struttura storica, armonizzando materiali originali e nuovi dettagli architettonici.

Il patio centrale emerge come elemento contemporaneo, un volume trasparente intorno al quale si articola la vita della casa.

Se nelle camere e negli ambienti di servizio sono stati introdotti appositi lucernari, il cuore dell’abitazione è rappresentato da un grande patio centrale. Non un semplice taglio nella copertura, ma un volume trasparente, completamente vetrato, attorno al quale si organizza la vita della casa. Questo elemento, fortemente contemporaneo, segna con chiarezza il confine – e allo stesso tempo l’incontro – tra la struttura storica e la nuova architettura.
Dall’open space, il volume vetrato del patio convoglia luce naturale e cielo verso l’interno, definendo la profondità e la qualità dell’ambiente.

La cucina combina muratura e pensili in legno con sedute rivestite in pelle, illuminata da una luce scenografica che valorizza l’essenzialità dei materiali.

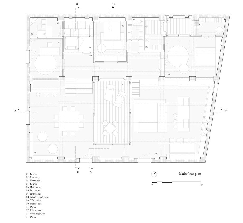
La nuova distribuzione interna segue fedelmente la conformazione originaria del fienile. Al livello inferiore si sviluppa la zona giorno, un ampio spazio fluido che accoglie living e cucina, affiancato dalla sala da pranzo incorniciata dalle capriate storiche. Due ambiti distinti ma comunicanti, entrambi affacciati sul patio e collegati, attraverso scale dedicate, al piano superiore.
L’ampia struttura a travi definisce le proporzioni dello spazio, restituendo il carattere originario del fienile.

La zona notte occupa il livello più alto dell’edificio, dove l’altezza si abbassa e gli spazi si fanno più raccolti. Qui si alternano camere e ambienti di servizio, raccordati da un ampio percorso distributivo che mantiene una continuità visiva con il grande open space sottostante.
Le stanze sono tre: due camere principali e una destinata a studio o stanza per gli ospiti, tutte dotate di bagno privato. La suite padronale si distingue per dimensioni e per la presenza di un secondo, piccolo patio riservato, pensato come luogo intimo di pausa e relax.
La camera padronale si apre su un patio privato, dove la luce naturale definisce l’atmosfera e rafforza il legame con la struttura storica.

Il bagno combina superfici in muratura e dettagli in legno, con proporzioni calibrate che valorizzano l’armonia dei volumi.

Materiali e finiture sono stati scelti seguendo una logica di sottrazione e coerenza. La palette cromatica, volutamente minimal, ruota attorno a bianco, nero e alle diverse sfumature del marrone, richiamando la materia originaria dell’edificio. I muri in mattoni a vista dialogano con una reinterpretazione contemporanea delle gelosie tradizionali, introdotte nelle porzioni superiori.
Le superfici perimetrali sono state trattate con un intonaco di calce naturale a grana grossa, dai toni caldi, utilizzato anche per i pavimenti in una miscela con resina che amplifica la continuità materica. Un dettaglio materico che si ritrova anche nelle configurazioni in muratura di alcuni arredi fissi e della cucina.
All’ingresso, il corpo scala autoportante in lamiera forata richiama le finiture in metallo brunito degli infissi, con leggerezza e precisione formale.

L’ingresso, al livello della strada, è segnato da un nuovo corpo scala autoportante realizzato in lamiera forata, mentre infissi, cornici e dettagli sono definiti dal metallo brunito. Il legno, lasciato nelle sue tonalità più autentiche, completa l’insieme ed è impiegato come finishing negli elementi disegnati su misura: dalle armadiature alle strutture dei letti, fino agli sportelli dei pensili e ai mobili bagno, progettati specificamente per questa casa.
Dettagli materici in legno e muratura definiscono volumi e superfici, valorizzando la qualità materica degli interni.

L’interior design segue una linea essenziale e rigorosa, affidata a pochi elementi selezionati con estrema cura. Il già citato legno, insieme a rivestimenti in pelle delle sedute e al metallo nero delle luci costituiscono l’ossatura concettuale degli interni, declinati in pannellature, porte e furniture custom che alternano superfici solide a volumi più morbidi.
Ne risulta un equilibrio sofisticato, costruito su contrasti calibrati e pattern materici che, cromaticamente e visivamente, rimandano alla vera protagonista dell’intervento: la struttura originaria del fienile e il suo straordinario soffitto a travi, finalmente restituiti a una nuova vita.
Project by SBAR – Salonia Baldin Architettura – sbarstudio.com
Photo © Fabio Mantovani
Porte progettate su misura e lucernari integrati in ciascuna camera sottolineano la precisione dei dettagli e l’armonia tra arredi personalizzati e struttura storica.

La planimetria dell’ex fienile oggi trasformato in una dimora raffinata e contemporanea © Salonia Baldin Architettura

In copertina, la scala in muratura con gradini in legno emerge tra i muri in mattoni e le travi a vista, unendo il carattere storico del fienile a un’atmosfera di luce e leggerezza contemporanea.






















