Nel cuore di Parigi, spazi d’epoca vengono reinterpretati attraverso una nuova distribuzione e un’armonia tra luce e volumi, dove il dialogo tra memoria storica e linguaggio contemporaneo ridefinisce comfort e percezione dell’abitare.
È un racconto che attraversa centosettant’anni di trasformazioni, fatto di segni lasciati dal tempo e oggi riorganizzati attraverso una sensibilità moderna. Questa ristrutturazione nasce da una riflessione contemporanea sull’abitare, fondata sull’uso consapevole e razionale dello spazio, applicata a una planimetria ottocentesca caratterizzata da ambienti angusti e una distribuzione ormai superata. Pensato per una giovane famiglia, l’intervento non ha intaccato la sofisticata anima originaria dell’immobile, che resta leggibile e intatta, ma ha trasformato radicalmente la vivibilità interna, restituendo continuità, luce e respiro agli interni.
Il living, cuore dell’appartamento, mostra la fusione tra l’impianto ottocentesco e le nuove aperture luminose, con la carta da parati che richiama l’opulenza decorativa del Secondo Impero e guida lo sguardo lungo lo spazio.

Il lavoro in questione, firmato dallo studio chagny & florent, riguarda un appartamento di 65 mq situato al quarto piano di un edificio d’epoca haussmanniana, edificato intorno al 1855 nel V arrondissement di Parigi. La casa, composta da zona giorno, cucina e due camere, era rimasta pressoché invariata per decenni e mostrava tutte le fragilità tipiche di una pianta antiquata: spazi ridotti, illuminazione insufficiente e una zona servizi praticamente inesistente, priva di un vero bagno e frammentata in elementi separati.
Zona salotto e cucina dialogano in un unico spazio, dove la luce naturale e il doppio affaccio esaltano la fluidità della nuova distribuzione e il richiamo all’epoca storica.

La strategia progettuale ha preso forma fin dalle prime decisioni strutturali, scegliendo di intervenire sul muro portante interno, aprendolo in modo calibrato per orientare lo spazio abitativo trasversalmente rispetto alle facciate. La sicurezza statica è stata garantita dall’inserimento di un architrave in ferro dal linguaggio contemporaneo, che diventa segno dichiarato della trasformazione, senza mimetismi né forzature.
L’area dining e kitchen si unisce alla zona pranzo in un ambiente armonico, caratterizzato da arredi su misura e dettagli che definiscono spazi funzionali e contemporanei.

La cucina combina acciaio inox e legno chiaro, accostando superfici robuste e materiche che enfatizzano qualità e praticità senza rinunciare a un’eleganza senza tempo.

In controtendenza rispetto agli schemi più diffusi, che collocano la zona giorno lungo l’affaccio stradale e relegano camere e bagni verso il cortile, l’intervento ha rifiutato questa separazione convenzionale. Liberandosi dalla rigidità imposta dal setto murario, l’appartamento sfrutta pienamente il doppio orientamento est-ovest e la vista aperta sui tetti parigini, valorizzando la posizione centrale all’interno dell’isolato. Questa scelta ha consentito di riunire soggiorno, pranzo e cucina in un unico ambiente, ampio e attraversato dalla luce, che accompagna lo spazio dalle prime ore del mattino fino alla sera.
Le librerie su misura dialogano con elementi conservati come stufa e modanature, mentre le decorazioni a soffitto arricchiscono l’ambiente con un fascino senza tempo.

Il concetto di stratificazione si traduce anche nella selezione dei materiali e delle cromie: una carta da parati dal carattere deciso, ispirata all’opulenza decorativa del Secondo Impero, definisce la profonda tonalità blu che sottolinea il tracciato dell’antico corridoio e del muro interno, trasformandoli nell’asse simbolico attorno a cui si organizza l’intero progetto. Gli arredi nascono da un equilibrio ricercato tra pezzi iconici di design, elementi d’epoca, soluzioni low cost accessibili e accenti più preziosi.
La nuova divisione tra zona pranzo e camera da letto lascia filtrare la luce verso l’ambiente più privato, ampliandone la percezione grazie alla maggiore luminosità.

L’ingresso oggi introduce a una zona living molto più ariosa, grazie alla continuità visiva dell’open space che si viene a creare con la cucina. La camera principale guadagna ampiezza attraverso una partizione vetrata, schermabile con tessili oscuranti, che lascia filtrare la luce naturale e dilata la percezione dello spazio. La seconda camera conserva dimensioni equilibrate e dialoga sia con il soggiorno sia con un nuovo disimpegno, pensato per nascondere la lavanderia e accompagnare verso il bagno rinnovato, in continuità con l’antica toilette.
La camera principale presenta una testata su misura nello stesso blu dell’ingresso, mentre la stanza dei bambini, mostra il camino originale e un’atmosfera resa ancora più accogliente grazie ai toni chiari scelti per le finiture.

Librerie su misura in acciaio e specchio, divisori in policarbonato, una cucina in acciaio inox e betulla e il nuovo ambiente bagno rappresentano le inserzioni contemporanee, misurate e riconoscibili. Restano invece al loro posto il parquet a spina di pesce – a cui sono state integrate nuove inserzioni perfettamente in linea concettuale – la stufa prussiana in salotto, uno splendido radiatore ottocentesco, il camino in camera da letto, le modanature e le decorazioni murali originali. È una sovrapposizione consapevole, che costruisce una nuova identità architettonica senza cancellare la memoria.
Il bagno mostra rivestimenti in pietra grigia e un calorifero in ottone d’epoca, dove materiali naturali e dettagli storici dialogano con l’ambiente in modo armonioso.

Lo spazio, prima frammentato, è stato riorganizzato e oggi appare luminoso e funzionale grazie alla finestra che introduce luce naturale, valorizzando l’equilibrio tra elementi nuovi e tracce storiche.

Oggi l’appartamento si è liberato dalle costrizioni dell’era Haussmann e può nuovamente accogliere una vita familiare. Offre ciò che, nel cuore di una città intensa e complessa, è diventato essenziale: luce naturale durante tutto l’arco della giornata, profondità visiva, spazi fluidi e una rinnovata sensazione di libertà.
Project by chagny & florent – flcarchitecture.com
Photo ©BCDF studio / Bertrand Fompeyrine
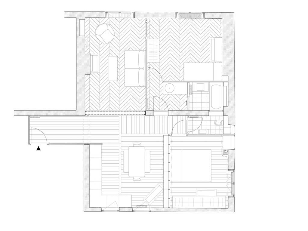
La planimetria dell’appartamento parigino ©chagny & florent

In copertina, un appartamento d’epoca haussmanniana che, dopo decenni di vincoli e spazi frammentati, ritrova continuità e leggibilità grazie a un intervento contemporaneo che valorizza il passato senza cancellarlo.























