In compagnia dello Studio di Architettura Benaim, andiamo nell’Oltrarno fiorentino e scopriamo l’ispirazione che ha guidato il progetto di ristrutturazione della nuova casa di una giornalista americana.
Una storia che comincia un bel po’ di anni fa: una giovane giornalista americana, appassionata della nostra cultura culinaria, decide, negli anni ’70, di lasciare gli Stati Uniti per venire a vivere in Italia, con la precisa volontà di apprendere e assaporare tutto dell’enogastronomia delle regioni italiane.
Dopo cinque decenni, ovvero attualmente, questa giornalista è diventata un punto riferimento per il settore, avendo consolidato nel tempo ottime relazioni con chef, agricoltori e produttori vinicoli attivi anche oltre i confini della Toscana. Il più grande dei piaceri resta per lei l’opportunità di riunire queste figure attorno al tavolo della sua casa e cucinare per loro.
Photo © Sofia Lalli

A due passi da Porta Romana e dall’Oltrarno fiorentino, la dimora in cui si è recentemente trasferita assieme al marito rappresenta perfettamente lo stile conviviale e lo spirito di condivisione con cui la signora ha sempre vissuto e vive il suo quotidiano, a partire dal luminosissimo living. Informale, intimo, cozy.
Photo © Sofia Lalli

LE SCELTE PROGETTUALI
Il progetto ha previsto un intervento di ristrutturazione di un appartamento degli anni ‘30 a pochi passi da Porta Romana. L’obiettivo era quello di adattare la casa alle esigenze dei nuovi proprietari e al loro stile di vita. Per volontà della committenza, il progetto ha ripreso e reinterpretato soluzioni di arredo già sperimentate nella loro precedente abitazione, mantenendo un forte legame con le abitudini quotidiane e i rituali domestici che avevano. La casa è stata completamente ridistribuita.
- Sul lato destro, affacciato sulla strada, sono stati spostati gli spazi privati: zona notte e studi personali dei due proprietari.
- Sul lato sinistro, rivolto verso il giardino interno, è stata ricavata la zona giorno: soggiorno, sala da pranzo e cucina.
Photo © Sofia Lalli

Questa nuova organizzazione ha permesso di separare in modo netto le funzioni della casa, migliorando comfort e vivibilità. Una delle scelte progettuali più significative è stata l’introduzione di grandi aperture interne, che mettono in dialogo diretto soggiorno, pranzo e cucina. Le demolizioni mirate hanno eliminato le compartimentazioni preesistenti, creando un unico spazio continuo e luminoso, in grado di accogliere momenti di convivialità o semplice quotidianità.
Un’apertura tra la cucina e la zona pranzo è stata valorizzata con una mensola passante in granito, che funge da piano d’appoggio e da elemento di connessione visiva. Il giardino privato rappresenta una vera rarità nel contesto urbano fiorentino. È stato attrezzato per ospitare anche un piccolo orto domestico di erbe aromatiche, in linea con la passione dei proprietari per la cucina e per le materie prime di qualità.
Photo © Sofia Lalli

Il progetto ha mantenuto un forte rispetto per l’identità originaria della casa:
- Gli infissi e le porte interne sono stati restaurati e non sostituite, dalla Falegnameria Ferruzzi.
- I pavimenti originali in graniglia decorata, differenti in ogni stanza, sono stati conservati e valorizzati. Puliti e cerati.
- Tutti gli arredi – cucina, bagni, cabina armadio, librerie e mobili su misura – sono stati realizzati da Wood Arredamenti, azienda artigiana della provincia di Firenze.
- Il risultato è un ambiente su misura, equilibrato tra passato e presente.
Photo © Sofia Lalli

FOCUS
La cucina come anima e cuore pulsante dell’intera casa. Un “microcosmo” di meno di 10mq, dove ogni cassetto, mensola o pensile è stato disegnato per rispondere a una specifica esigenza della committenza. Una minuziosa progettazione che si deve allo studio di architettura fiorentino guidato da André Benaim, artefice della ristrutturazione dell’intero immobile, impreziosito da un silenzioso giardino di proprietà.
Photo © Sofia Lalli

I DESIDERATA DELLA COMMITTENZA
Proprio grazie alla sua esperienza nel settore, la proprietà si è presentata ai progettisti del team Benaim con le idee chiare circa i suoi desiderata. La cucina, punto nevralgico della casa, doveva essere uno spazio vivo, funzionale, predisposto alla convivialità. Il modello scelto per il blocco di cottura, precisano gli architetti dello Studio Benaim che si sono occupati della ristrutturazione, non ha comportato sforzi a livello impiantistico o di montaggio.
Photo © Sofia Lalli

Date le dimensioni contenute, si è optato per un modello ILVE da 90 cm della gamma Professional Plus, la misura più piccola per poter disporre di due forni (uno da 60 cm, l’altro da 30 cm), per poter cucinare per più persone. Il piano cottura è dotato di 6 fuochi e il disegno delle griglie in ghisa permette di spostare le pentole in tranquillità, senza rischiare che si ribaltino. Infine, la cappa aspirante in acciaio AISI 304, con filtri professionali (a labirinto), ribadisce la vocazione professionale della committenza.
Blocco cottura ILVE 90 cm gamma Professional Plus e cappa aspirante in acciaio AISI 304, tutto di ILVE | photo courtesy ILVE

L’OBIETTIVO: FAR EMERGERE IL POTENZIALE DEGLI SPAZI
Più in generale, gli architetti dello studio Benaim hanno lavorato per far emergere le potenzialità ancora inespresse di tutti gli spazi dell’appartamento, situato al piano nobile di un immobile risalente agli anni Trenta del Novecento. Un’epoca della quale restano come principale testimonianza gli storici pavimenti in graniglia decorata: contraddistinti da pattern diversi stanza per stanza, sono stati tutti conservati e risultano esaltati dalla scelta di introdurre in casa arredi, in larga parte, sollevati o in sospensione rispetto al piano di calpestio.
Photo © Sofia Lalli

IL RISULTATO
Attraverso una progettazione attenta a ogni centimetro quadrato disponibile e grazie all’intuizione di generare una diretta connessione con l’adiacente living, il piccolo vano cucina appare quindi come un’efficiente “alcova operativa”; per effetto del restyling architettonico, gode ora della luce naturale in ingresso dalle due finestre rivolte verso il giardino.
“Abbiamo effettuato una doppia cerchiatura” precisano gli architetti, soffermandosi sui principali interventi strutturali che hanno riguardato la zona giorno. “Da una parte abbiamo abbattuto una parete che divideva gli ambienti oggi destinati al divano e al tavolo da pranzo, così da formare un unico e ampio spazio conviviale; dall’altra abbiamo aperto un’asola tra la cucina e il resto del living, inserendo una grande mensola passante in granito che agisce anche da piano di appoggio per i mobili collocati al di sotto”.
Photo © Sofia Lalli

Questo stesso rivestimento unifica tutti i piani di lavoro interni; il colore bianco, scelto per le pareti, le mensole e i pensili, tutti in legno dipinto, amplifica le sensazioni di pulizia e praticità della cucina, senza renderla asettica. Alla sua unicità, infatti, contribuiscono le collezioni esposte di stoviglie, pentole, padelle e gli altri accessori raccolti nel tempo dalla proprietaria a testimonianza della sua sconfinata passione per il cibo e il mangiar bene.
Non mancano, infine, gli accorgimenti “furbi” e sorprendenti, come lo zoccolino ligneo concepito come ulteriore volume contenitore. “Potrebbe sembrare un battiscopa oppure uno zoccolo come quello presente normalmente nelle cucine: invece è un cassetto dedicato a riporre in particolare i vassoi, inclusi quelli di grandi dimensioni” svelano dallo studio Benaim.
Il risultato è una cucina in cui tutto è a portata di mano, accessibile anche quando sembra non visibile, pensata per dare priorità all’operatività e non solo per fare bella mostra di sé stessa. Un luogo perfetto nel quale la proprietaria è solita preparare, fra gli altri, il piatto che più rappresenta la sua storia personale: l’irrinunciabile fettunta toscana.
Photo © Sofia Lalli

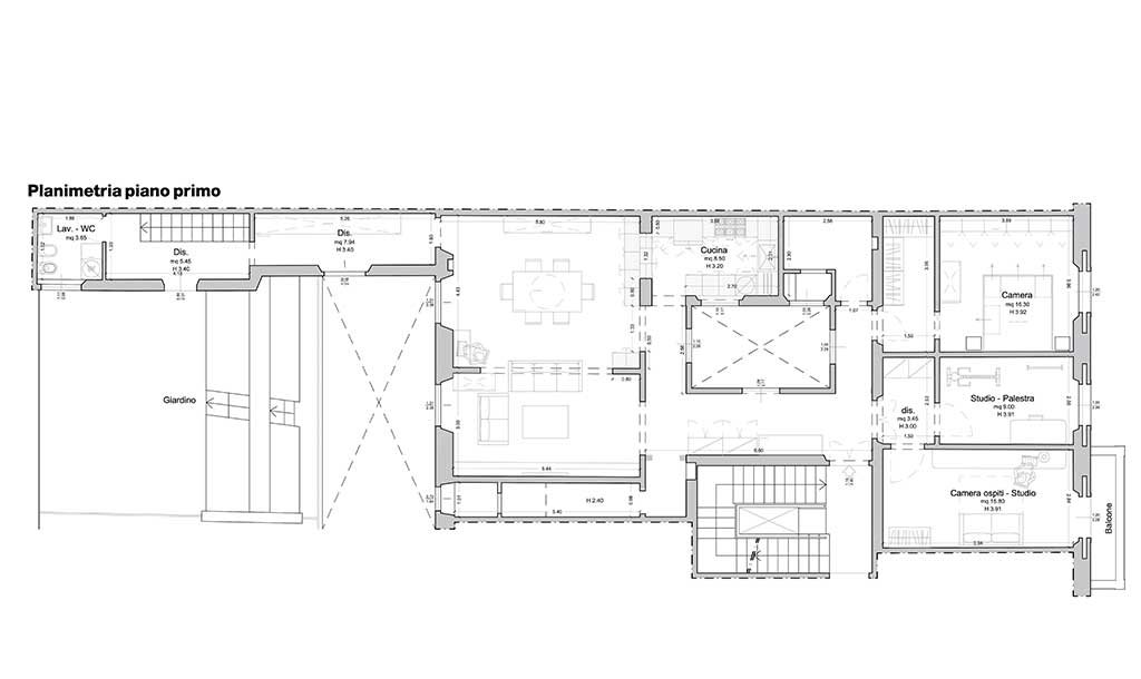
Planimetria Casa Porta Romana © Studio di Architettura Benaim

DATI TECNICI
Superficie: 250 mq
Committenza: Privato
Progettista d’Interni: André Benaim, Camilla Santoni – studiobenaim.com
Architetto: André Benaim, Camilla Santoni – studiobenaim.com
Fotografia: Sofia Lalli
Anno: 2025
Artigiani: Falegnameria Fratelli Ferruzzi (infissi), Falegnameria Wood Arredamenti (arredo interno cucina, mobile tv/libreria, dispensa, mobili bagni, cabina armadio, palestra, studio, ingresso)
Fornitori bagni (WC, bidet, miscelatori): Ideal Standard (sanitari) Bugnatese (rubinetteria)
Resina bagno di servizio: Moreno Paparini
Rivestimento bagno master: marmo di Carrara fornito da Baldazzi e Pasco
Piano cucina: Granito fornito da Baldazzi e Pasco
Elettrodomestici cucina: ILVE, Haier, Siemens, Giesse, Grohe Blu Home
Cappa cucina: ILVE – ilve.com
In copertina, Photo © Sofia Lalli
























