Una trasformazione sartoriale da vita a spazi elegantemente organizzati dove l’anima storica della casa si intreccia con le moderne esigenze dell’abitare, creando un’atmosfera autentica e accogliente.
Lungo una suggestiva crêuza in mattoni rossi, una delle caratteristiche viuzze del centro storico di Genova, che conduce verso il quartiere di Castelletto, si trova un appartamento che racconta in ogni dettaglio il dialogo più raffinato tra passato e presente. Situata all’interno di un edificio dei primi del Novecento, la dimora conserva intatta l’anima dell’epoca in cui è stata costruita: spesse murature in pietra, pavimenti in legno e una composizione degli spazi che rimanda ad atmosfere d’altri tempi.
La ristrutturazione di questo appartamento nel cuore di Genova intreccia storia e esigenze contemporanee, creando spazi di autenticità, comfort ed eleganza senza tempo.

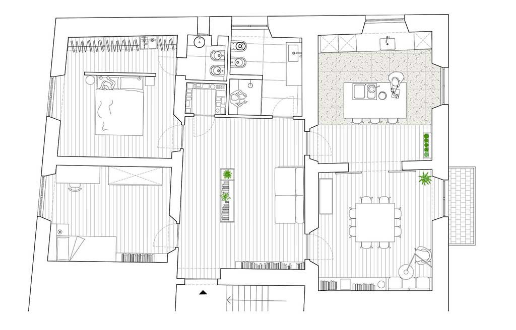
Con una superficie di circa 130 mq, la casa segue lo schema tradizionale delle abitazioni genovesi, caratterizzato da un ampio ingresso centrale dal quale si accede a tutti gli ambienti. La ristrutturazione curata da Studio. D Architettura ha saputo interpretare, con equilibrio e consapevolezza progettuale, le esigenze contemporanee della giovane coppia che vi risiede. Pur dovendo rispettare i vincoli imposti dai quattro muri portanti, che definiscono la conformazione degli spazi della planimetria, il progetto è riuscito a ricavare un soggiorno, un’ampia cucina, una sala da pranzo, due camere da letto, doppi servizi finestrati e una lavanderia.
Il soggiorno si apre direttamente sull’ingresso come cuore pulsante dell’abitazione, uno spazio fluido e accogliente dove l’arredo essenziale valorizza la funzionalità e la convivialità.

La cucina, progettata su misura, unisce funzionalità e design con la doppia porta scorrevole in ferro e vetro che crea continuità con la sala da pranzo, in un dialogo discreto tra materiali e spazi.

Fedele all’assetto volumetrico originario, l’intervento è riuscito a introdurre nuove connessioni funzionali tra i vari locali: il living è il cuore della casa, posto nell’ampio ingresso, trasformato in un crocevia abitativo dal carattere dinamico e flessibile. L’arredo, volutamente essenziale, è pensato per accogliere, unire le diverse destinazioni d’uso e garantire una piena abitabilità degli ambienti.
L’ampia apertura tra cucina e sala da pranzo è definita da una porta scorrevole in ferro e vetro su misura, dove il cannettato del rivestimento cucina si riflette nelle delicate texture della parte inferiore della porta, creando un raffinato dialogo estetico.

La cucina e la sala da pranzo sono unite attraverso una grande apertura, incorniciata da una doppia porta scorrevole in ferro e vetro realizzata su misura. Lo spazio operativo è articolato lungo la parete attrezzata con zona lavabo e colonne contenitive, completata da un’isola centrale con piano cottura integrato, che funge anche da punto di appoggio per pasti veloci o colazioni informali. La zona pranzo è caratterizzata da un ampio tavolo quadrato in ferro e marmo – sempre su misura – pensato per accogliere sia momenti conviviali che attività lavorative.
L’isola nera della cucina richiama i dettagli in ferro della porta scorrevole, collegando con eleganza cucina e sala da pranzo; il pavimento in rovere unisce gli ambienti principali, mentre nella zona kitchen il rivestimento richiama la tradizionale finitura a grisaglia.

Nella camera padronale, una parete rivestita in piastrelle color azzurro polvere sostituisce la tradizionale testiera, fungendo anche da filtro visivo per la cabina armadio retrostante, dalla quale si accede al bagno privato. Il bagno principale, invece, è impreziosito da una spaziosa doccia con panca integrata, che separa con discrezione la zona dei sanitari.
Nella camera padronale, la parete in piastrelle azzurro polvere sostituisce la testiera, nascondendo con eleganza la cabina armadio retrostante, abbinandosi al design storico dell’arredo.

I profili orizzontali della porta della doccia e degli angoli sono trattati in nero (un richiamo all’elemento divisorio tra cucina e zona pranzo), mentre le pareti alternano piastrelle bianche con inserti grafici scuri e una finitura a smalto in una tonalità calda di verde. Per rischiarare ulteriormente l’atmosfera sono stati scelti mobili sospesi in legno, nella stessa essenza cromatica del parquet delle altre stanze, sormontati da piani continui total white.
Nella cabina armadio, nascosta dietro la parete azzurro polvere, si apre con discrezione il bagno en suite della camera padronale, unendo funzionalità e privacy in un unico ambiente.

Toni neutri e un’allure minimal chic caratterizzano lo stile di tutta l’abitazione: un accostamento garbato con tocchi di carattere sparsi, reso luminoso dalle pareti bianche, giocato su una studiata mescolanza di stili che richiamano atmosfere vintage ma raccontano, in egual misura, un animo contemporaneo votato all’eleganza senza fronzoli. Design storico, arredi custom made e un’attenzione particolare al finishing di ogni dettaglio descrivono un approccio sofisticato alla progettazione, creando un ensemble concettuale che rende accogliente ogni interno, come se la casa fosse abitata da sempre.
Il bagno principale si caratterizza per la spaziosa doccia con panca integrata, i mobili sospesi in legno e le pareti in piastrelle bianche con dettagli grafici e profili neri, creando un ambiente luminoso e raffinato.

Il pavimento in parquet di rovere, posato in modo continuo in tutte le stanze principali, accompagna con discrezione la fluidità del percorso abitativo, mentre in cucina il rivestimento posto nelle zone operative richiama l’antica finitura ‘alla genovese’ – anche nota come ‘alla veneziana’ o in graniglia – reinterpretata in chiave attuale. Nei bagni, invece, a terra è stata posata una ceramica che richiama l’ardesia, portando una nota celebrativa verso un materiale tipico del luogo e usato nelle case liguri da secoli.
La ristrutturazione è il risultato di un intervento accurato capace di custodire la memoria storica della casa restituendole, al tempo stesso, nuova vita attraverso una sensibilità progettuale misurata che è stata in grado di fondere il fascino dell’architettura d’epoca con le esigenze dell’abitare contemporaneo. Ogni scelta, dai materiali alle soluzioni distributive, è stata calibrata con precisione per mantenere coerenza estetica, garantire funzionalità e offrire un’esperienza abitativa raffinata e senza tempo.
Project by Studio.D’Architettura – studiodarchitettura.it
Photo © Anna Positano
La planimetria di Appartamento Sant’Anna a Genova | © Studio.D’Architettura

In copertina, la zona pranzo dell’appartamento, dettaglio di un progetto che reinventa la tradizione con uno stile sobrio e sofisticato, capace di unire materiali storici e dettagli contemporanei in un’atmosfera di raffinata accoglienza.
























